Signed in as:
filler@godaddy.com
Signed in as:
filler@godaddy.com
The proposed detention basins 11 are located on Bonds Creek and the tributary of Kemps Creek within the proposed Austral and Leppington North precincts.
A water cycle management strategy for the entire precinct as well as concept designs for the basin have recently been completed. The developers in the area have provided temporary basins for detention and water quality purposes to date. There is now an urgency to construct the basin as soon as possible, in order for the affected temporary basin area can be released and utilised for development purposes.
The main objectives for the project include: Design flood storage detention basin, design of drainage and hydraulic structures, design WSUD facilities and meet specific water quality improvement targets, produce detailed design drawings, bill of quantities and cost estimates.
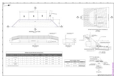
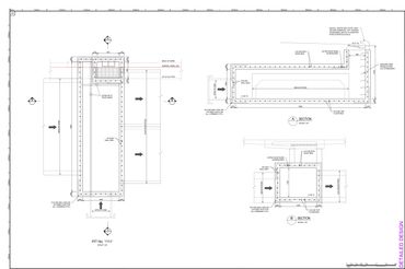
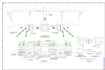
Basins 11 is 12,950 m3 in size and have been designed to cater for the 50% AEP event. A flow diversion system has been to be incorporated as part of the design for the basin, in order to divert and treat the design flows. Innovative design approaches to Bio-retention WSUD treatment has been incorporated into the designs such that the basin footprint did not increased for water quality treatment purposes.
Due to the urgency of this project, our teams were fully committed and was able to delivered the detailed design of Basin 11 to Council within the appropriate timeframe. We have been praised by Council for our reliability, responsiveness, flexibility, ease of communication & co-operation, and conscientious efforts in meeting any specific Council needs that arise during the project. And in the process we have become a trusted advisers to Liverpool City Council to provide the best outcomes for Council and the community, with sound regard to environmental and social aspects, ease of operation & maintenance, cost effectiveness, and long-term sustainability of the constructed infrastructure.









RDK Consulting
2 Philip Street, Strathfield New South Wales 2135, Australia
We use cookies to analyze website traffic and optimize your website experience. By accepting our use of cookies, your data will be aggregated with all other user data.